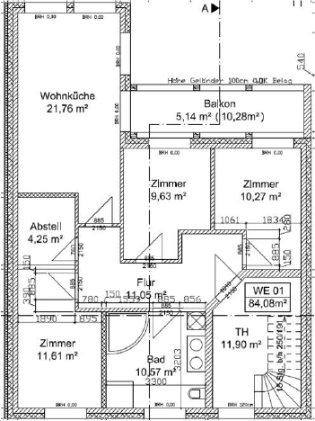
Schweizer Straße 6, 16225 Eberswalde